Liczba pokoi: 5 (4 sypialnie + salon z aneksem kuchennym) garaż w bryle domu
Stan: deweloperski
Rodzaj zabudowy: jednorodzinny dwulokalowy
Powierzchnie działki wynosi 500-600 m kw
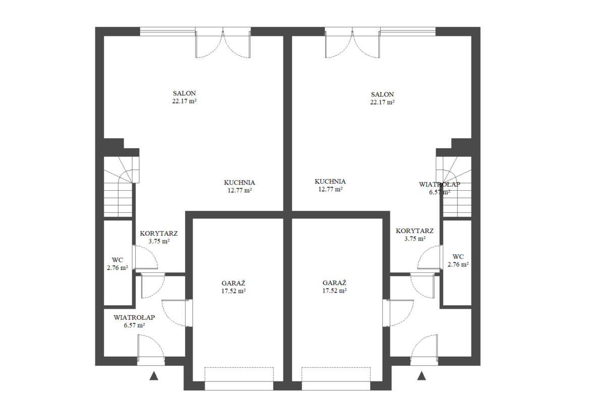
Parter:
– wiatrołap, hol
– łazienka z prysznicem
-garaż
– salon z aneksem kuchennym i wyjściem na taras
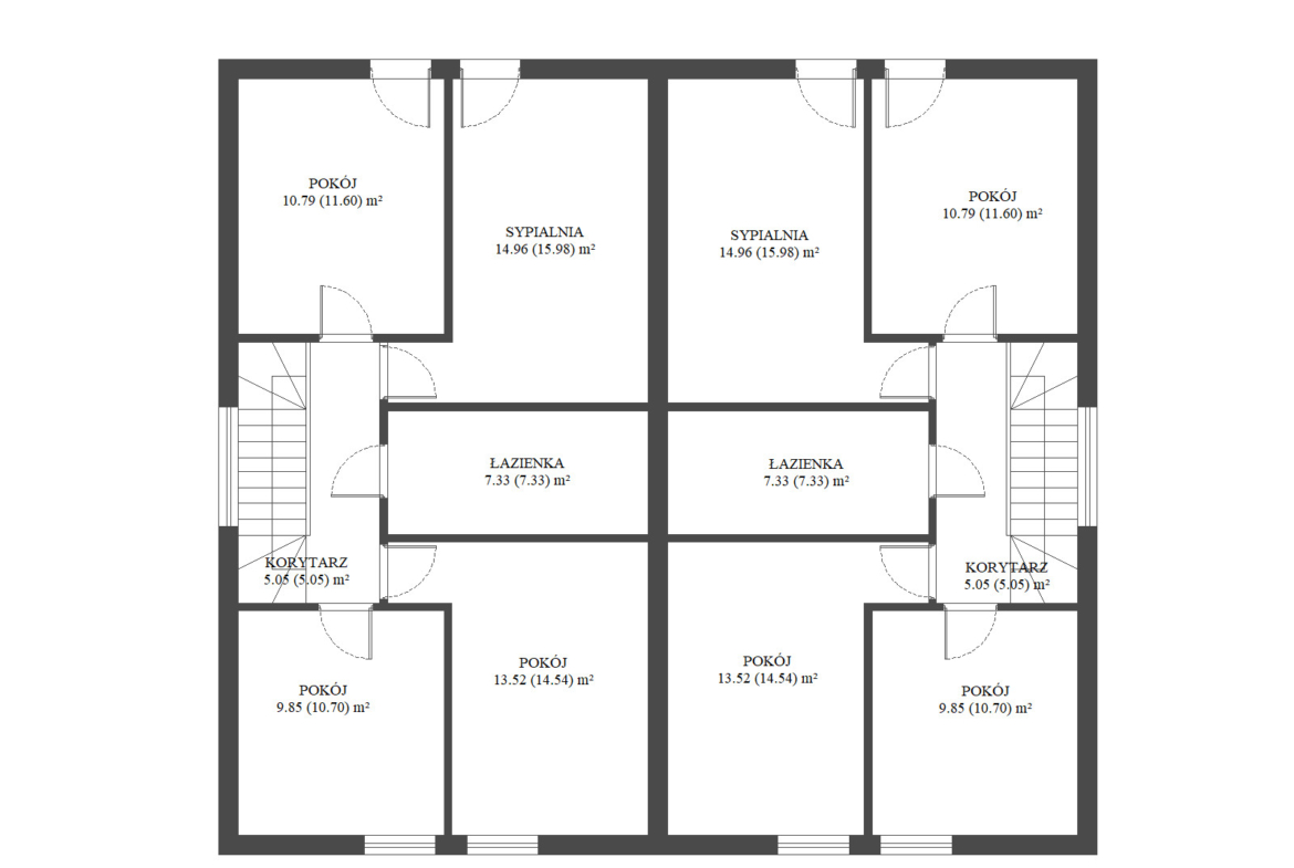
Piętro:
– 4 sypialnie
– łazienka
– dostęp do poddasza użytkowego
Na uwagę zasługują duże przeszklenia, na klatce schodowej które dają poczucie jeszcze większej przestrzeni.
Całość wyróżnia się nietuzinkową architekturą z elementami nowoczesnego designu, nie zapominając jednocześnie o komforcie przyszłych mieszkańców.
WYSOKI STANDARD WYKOŃCZENIA / NAJWAŻNIEJSZE PARAMETRY TECHNICZNE:
- pompa ciepła 9 kW
- ogrzewanie podłogowe w całym budynku
- okna PCV trzyszybowe
- instalacje: prąd, woda, szambo, instalacja alarmowa, kamery, domofon, TV, światłowód, sterowanie ogrzewaniem z każdego pomieszczenia, oświetlenie zewnętrzne z gniazdkami,
- ściany: tynk gipsowy
- ściana między lokalami 2x24cm z pustaka akustycznego wygłuszenie 130 decybele, z szczelina delatacyjna
- pełne deskowanie dachu + membrana + piana pur 25cm
- posadzki: betonowe
- taras i podjazd z kostki brukowej
- ogrodzenie z przęseł modułowych
- 2 miejsce postojowe na zewnątrz + 1 w garażu
LOKALIZACJA:
Dojazd do centrum Gdyni czy Gdańska można szybko pokonać dzięki ukończonej budowie trasy S6 do której jest niecałe 2,5 km. Lokalizacja jest idealnym rozwiązaniem dla osób chcących posiadać dom w pięknych, malowniczych i spokojnych terenach z jednoczesnym szybkim i łatwym dojazdem do aglomeracji miejskiej.
W najbliższej okolicy delikatesy spożywcze. W okolicy znajdują się placówki edukacyjne takie jak przedszkola, żłobki, szkoły.
Brak podatku PCC
GŁÓWNE ATUTY INWESTYCJI:
• kameralna, nowoczesna inwestycja
• pełna infrastruktura drogowa dojazd do budynków drogą wewnętrzną z płyt Yomb,
• funkcjonalny rozkład pomieszczeń
• usytuowanie budynków zapewnia bardzo dobre nasłonecznienie przez cały dzień
• szybki dojazd do Trójmiasta
• malownicze tereny zielone, przyjemna okolica
MOŻLIWOŚĆ WYKOŃCZENIA POD INDYWIDUALNY PROJEKT!!
Zapraszam na prezentację!
Maria Olszewska