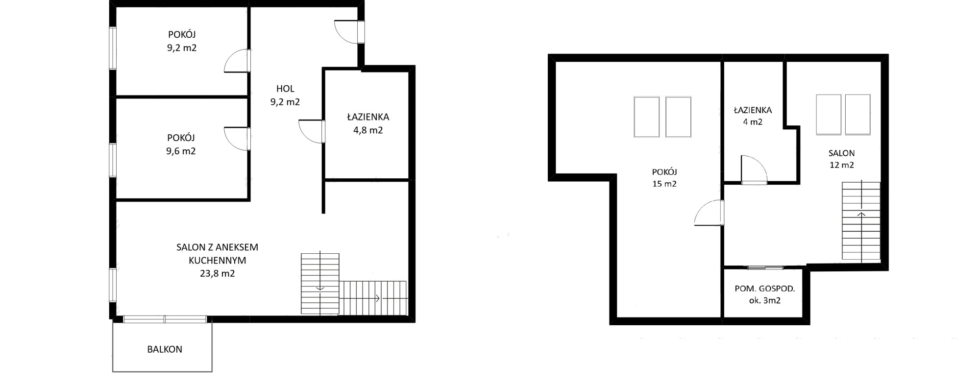
Na sprzedaż wyjątkowe mieszkanie o powierzchni użytkowej 90,6 m² (w tym 34 m² antresoli), położone w dynamicznie rozwijającej się miejscowości Pogórze, zaledwie kilka minut od centrum Gdyni i nadmorskich miejscowości. To propozycja dla osób, które poszukują funkcjonalnego układu, przestrzeni oraz dogodnej lokalizacji z szybkim dostępem do infrastruktury miejskiej.
Poziom II – antresola (34 m²)
- Przytulny salon (ok. 12 m²),
- Sypialnia z ekspozycją wschodnią (ok.15 m²)
- Pomieszczenie gospodarcze(ok.3 m²),
- Łazienka z wanną (ok. 4 m²),
Dodatkowe:
-Komórka lokatorska(4,7m2) obligatoryjnie- 20 000 zł
-Prywatne miejsce postojowe obligatoryjnie – 30 000 zł
-Możliwość zakupu mieszkania z pełnym wyposażeniem,
Koszty utrzymania:
Opłaty do wspólnoty:
ok. 900 zł miesięcznie okres letni
ok. 1200 zł miesięcznie okres zimowy
Lokalizacja:
Pogórze (gm. Kosakowo) to miejscowość położona w bezpośrednim sąsiedztwie Gdyni, w jednej z najbardziej atrakcyjnych części Pomorza. Bliskość morza oraz nadmorskich miejscowości, takich jak Rewa czy Mechelinki, czyni tę lokalizację idealną zarówno do życia, jak i jako inwestycję.
W najbliższym otoczeniu znajdują się wszystkie niezbędne udogodnienia:
- sklepy (Biedronka, Lidl, Aldi),
- Galeria Szperk,
- szkoły i przedszkola,
- punkty usługowe i gastronomiczne.
Dzięki bliskości głównych tras (Estakada Kwiatkowskiego, Obwodnica Trójmiasta) oraz komunikacji autobusowej dojazd do centrum Gdyni zajmuje zaledwie kilkanaście minut.
To mieszkanie to doskonałe połączenie funkcjonalności, przestrzeni i spokojnej lokalizacji blisko morza, idealne dla rodzin i osób ceniących wygodę oraz szybki dostęp do miasta
Serdecznie zapraszam na prezentacje
Maria Parteka
798 833 133
mparteka@miocasa.pl