OFERTA DOSTĘPNA TYLKO I WYŁĄCZNIE W BIURZE NIERUCHOMOŚCI MIO CASA!
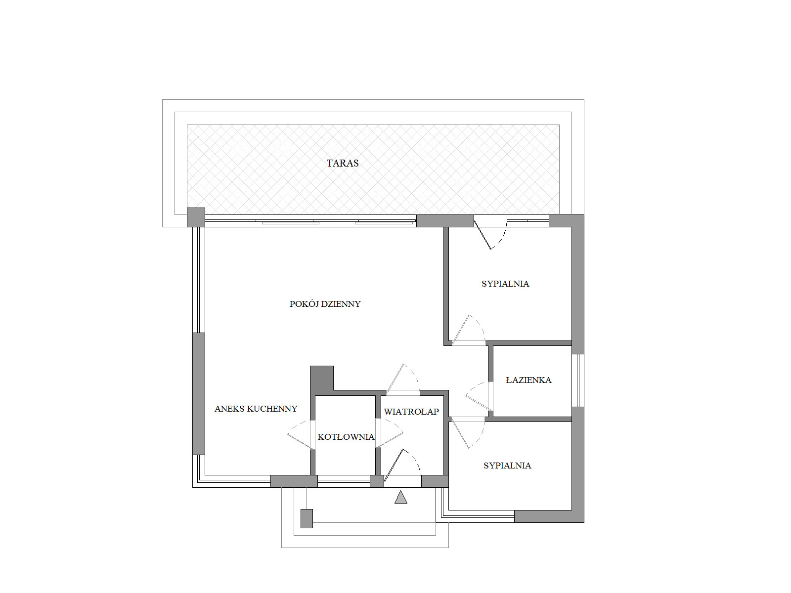
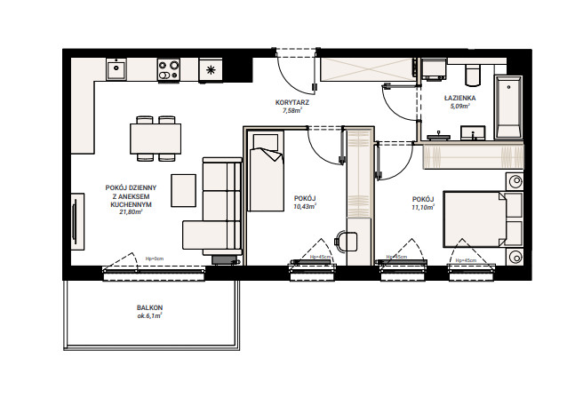
Na sprzedaż dom jednorodzinny o powierzchni 70 m², położony na dużej i ustawnej działce o powierzchni 1351 m², w miejscowości Nowy Dwór Wejherowski. Idealna propozycja dla osób szukających spokoju i przestrzeni, z jednoczesnym dobrym dojazdem do Wejherowa.
ATUTY NIERUCHOMOŚCI
- Nowy piec na pellet-wykonany i gotowy do użytku
- Ekonomiczne i nowoczesne ogrzewanie zapewniające komfort oraz niskie koszty utrzymania.
- Dom solidnie wybudowany, z dużym potencjałem do własnej aranżacji.
- Duża działka 1351 m²-możliwość zagospodarowania ogrodu, rekreacji lub dalszej rozbudowy.
- Ogrzewanie podłogowe.
- Bojler elektryczny.
- Spokojna okolica, luźna zabudowa.
- Dogodny dojazd do Wejherowa.
- Dostępny projekt domu do dokończenia.
- Możliwość podłączenia monitoringu.
- Nieruchomość wybudowana z drewna skandynawskiego.
- Niedaleko jeziora-kilka minut pieszo.
Więcej
WAŻNA INFORMACJA
Dom nie posiada wykonanego odbioru budowlanego
.
LOKALIZACJA
Dom zlokalizowany jest w malowniczej części Nowego Dworu Wejherowskiego. Nieopodal nieruchomości znajduje się jezioro, lasy oraz miejsca do spędzenia czasu wolnego.
- Bieszkowice (zaledwie 3km) – atrakcja turystyczna okolicy, miejsce wypoczynku z jeziorem.
- Plaża przy Jeziorze Borowo (2km)
- Wejherowo (8km – 10 min samochodem)
- Rumia (9km – 20 min samochodem)
Z dala od zgiełku ulicznego i hałasu. Idealne miejsce dla rodzin z dziećmi.
Cena do negocjacji.
Zainteresowanych zapraszam do kontaktu-chętnie udzielę dodatkowych informacji i umówię się na prezentację.
Maria Parteka
798833133
mparteka@miocasa.pl