Na sprzedaż prezentujemy Państwu elegancki apartament dwupoziomowy o powierzchni użytkowej 71,4 m² (całkowita – 84 m²), położony w Kosakowie, zaledwie kilkanaście minut od centrum Gdyni. Oferta skierowana dla osób szukającej większej
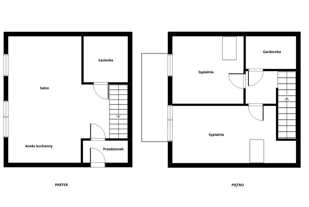
Układ pomieszczeń:
Parter (ogrzewanie podłogowe):
- Jasny salon połączony z aneksem kuchennym i częścią jadalną,
- Łazienka z nowoczesnym prysznicem walk-in,
- Hol z pojemną szafą w zabudowie,
- Dodatkowa przestrzeń do przechowywania pod schodami
Piętro (ogrzewanie grzejnikowe):
- Sypialnia główna z garderobą i wyjściem na taras
- Druga sypialnia
- Dodatkowa garderoba (możliwość aranżacji drugiej łazienki)
Główne atuty nieruchomości:
✔ wysoki standard wykończenia, bez konieczności dodatkowych nakładów
✔ funkcjonalny rozkład na dwóch poziomach
✔ duży, prywatny taras z pięknym widokiem
✔ jasne wnętrza – wszystkie okna wychodzą na tereny zielone
✔ niskie koszty utrzymania
✔ miejsce postojowe naziemne (zakup obligatoryjny-25 000 zł)
✔ spokojne, kameralne osiedle z zamkniętym terenem zielonym dla mieszkańców
✔ bliskość natury – lasy, plaże w Mechelinkach i Rewie
✔ szybki dojazd do Gdyni ok. 20 min samochodem
✔ całe wyposażenie w cenie
Dodatkowe informacje:
Kuchnia wyposażona w pełny sprzęt AGD: zmywarka, płyta indukcyjna, piekarnik, lodówka z zamrażarką, okap, mikrofalówka
Zabudowy na wymiar, meble wypoczynkowe z funkcją relaksu, rozkładana kanapa, szafy, regały, biurko
Na podłogach gres i panele, parapety z białego marmuru, drzwi wewnętrzne firmy Porta
Zapas materiałów wykończeniowych (płytki, panele, listwy)
Wspólnota prowadzi remont tarasów i części wspólnych, w planach również odświeżenie elewacji
Opłaty:
395 zł czynsz do wspólnoty + media wg. zużycia
Nasze biuro zapewnia pełną obsługę kredytową oraz bezpłatną konsultację z gdańskim biurem architektoniczno – projektowym, np. w celu zaaranżowania przestrzeni pod indywidualne wymagania kupującego.
Zapraszam do kontaktu oraz na prezentację.